


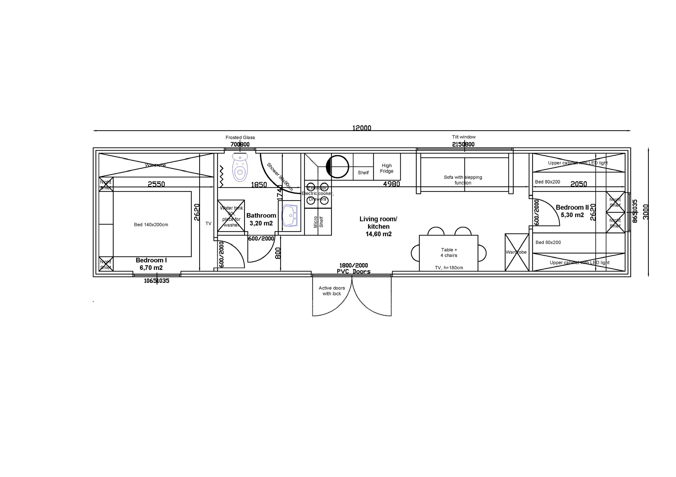
CASA MOBILE 12 X 3
CASA MOBILE – PROGETTO NON STANDARD
COMPOSTA DA DUE CAMERE DA LETTO, SOGGIORNO – CUCINA E UN BAGNO
LE RIFINITURE SIA INTERNE CHE ESTERNE POSSONO ESSERE PERSONALIZZATE
La versione ECONOMY comprende:
La costruzione in acciaio e legno, ruote complete, gancio di traino per il trasporto, impermeabilizzante, barriera al vapore, barriera antivento, 15 cm di lana minerale nel pavimento e nel sottotetto, 10 cm circa di lana minerale nelle pareti, finestre in pvc a 6 camere con doppi vetri, portefinestre con montante mobile, ventilatori che garantiscono la circolazione dell’aria, davanzali interni in pvc, davanzali esterni in lamiera, telai delle porte regolabili, porte interne in impiallacciato, porta esterna in acciaio con soglia e riempimento fatto di lana di roccia, impianto idraulico, elettrico, di ventilazione completo e l’impianto rtv, interruttori, prese, spine / manometri, coperture in lamiera d’acciaio, grondaie in pvc, pavimento rifinito con rivestimento in lvt resistente all’abrasione, ventilazione meccanica in bagno e cucina, l’interno è rifinito con pannelli e listelli in PVC, la facciata esterna è realizzata con il pannello VinyTOP, illuminazione interna a LED, illuminazione da esterno a LED (da 6 a 10 punti luce), prese rtv con cavo antenna portato all’esterno della casa, il fondo della casa è protetto con una lamiera di acciaio zincato
La versione PREMIUM comprende lo standard di finitura ECONOMY più:
armadio in ogni camera da letto, un comodino in ogni camera da letto, un letto con un materasso e un box per la biancheria da letto in ogni camera da letto, cassettiera in soggiorno, un divano ad angolo con funzione letto e un contenitore per la biancheria da letto, un tavolino da caffè, mobili da cucina inferiori con un piano d’appoggio, pensili da cucina con i LED, lavello con rubinetto in cucina, frigorifero sotto piano d’appoggio, con congelatore, piastra elettrica a 4 fuochi, pannello di vetro sulla parete tra i mobili della cucina, cappa, asciugamani elettrico, wc, box doccia 90 x 90 cm con piatto doccia, lavabo con rubinetto, mobile lavabo, ventilatore in bagno, specchio con illuminazione LED, mobile da bagno con spazio per scaldaacqua e lavatrice, boiler elettrico 50 I, da incasso, piastre riscaldanti elettriche – (1 in ogni camera da letto, 1 in bagno e 2 in soggiorno).
Materiali EXTRA: facciata in legno o pannello Kerrafront , zincatura del telaio, cambio dell’angolazione del tetto , rialzo – aumento dell’altezza della casa di 30 cm , finiture interne con legno (pareti, soffitti, listelli), finitura interna: pannello Forestia, lana minerale con migliori parametri di isolamento termico o aumento dello spessore della lana a 20 cm tetto, 15 cm pavimento, lamina ALU-FOX, finestre con triplo vetro , finestre in impiallacciatura unilaterale o bifacciale, soffitto triangolare, rialzato nel soggiorno , riscaldamento – radiatori elettrici e ad olio, riscaldamento – pannelli ad infrarossi, riscaldamento a pavimento elettrico, riscaldamento – impianto a gas, camino a pellet, climatizzatori con funzione di raffreddamento e riscaldamento Cucina, frigorifero alto da incasso, mobili aggiuntivi in cucina, piano cottura a induzione, forno, lavastoviglie 45 cm, microonde, lavello in fragranite, vetro sulla parete in cucina, mobili da cucina laccati lucidi.